Пн-Пт з 9:00 до 18:00 +38 (067) 106 75 06

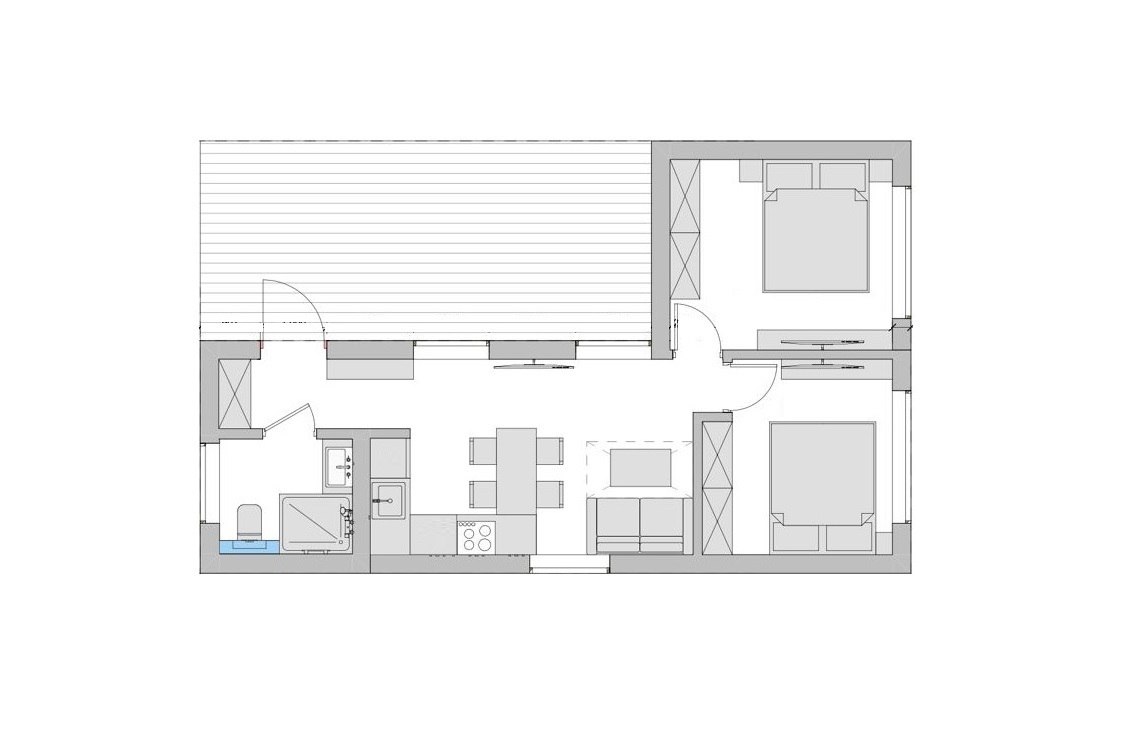
Модульний будинок 50 м2

Ціна: 27 150 $
Комплектація Ціна

Базова 27 150 $

Будинок з завершеним зовнішнім оздобленням, утеплений, має внутрішні перегородки, готовий до створення власного інтер’єру. Всі комунікації вже підключені, залишається лише зробити внутрішнє оздоблення стін, стелі та підлоги

Комфорт 39 100 $

Готовий будинок з виконаним ремонтом. Стіни оздоблені імітацією бруса смереки, підлога вкрита ламінатом, стеля — натяжна “біла матова”. Санвузол прикрашений керамічною плиткою. Встановлене всі освітлення та електрофурнітура.

Преміум 42 883 $

Повністю готовий будинок із преміальним ремонтом. Стіни оздоблені гіпсокартоном та фарбовані у відтінки, вибрані за палітрою зимовника. Встановлені вікна та двері вищого стандарту. Проект передбачає місце для установки каміну, створюючи атмосферу затишку та розкоші.

Варіанти додаткових опцій

Камін

Піч-камін ТМ Plamen
Всі комплектуючі до печі
 
– конденсатозбірник,
– шибер,
– труби подвійної ізоляції,
– термо віддзеркалювач,
– скляна основа під піч,
– прохідний отвір дах-стеля,
– Майстер Флеш,
– термо грибок для димоходу.
Екран захисту стіни, що включає в себе магнезитову плиту, кальцій силікатну плиту, а також оздоблення з клінкерної цегли.
Камін

Тераси та перголи

Каркас:
 
Зроблено з металевого каркасу, крашеного в порошковій фарбі.
Покриття ґанку та тераси:
 
– На ґанку терасна дошка.
– На терасі композитна дошка англійського виробника з гарантією 5 років від вигорання.
Покрівля:
 
На покрівлі ґанку та тераси використовуємо полікарбонат від 8 мм (Ізраїль).
Водовідведення:
 
Жолоб та комплектуючі з гарантією 10 років.
Тераси та перголи

Наповнення сан. вузла

Душова кабіна, за потребою можна змінити на ванну
Комплектація душової
– Донний трап та скляна шторка + піддон 90*90 Kolo
– Сифон до душової кабіни
– Змішувач Antonio Frattini RO80 Roller
– Душовий набір (лійка + стійка + шланг Grohe 27598001 або іншого виробника)
Тумба та раковина
– Корпус: Kronospan 18 мм
– Фасад та стільниця: МДФ покраска (вологостійка)
– Напрямна: Hefele скритого монтажу з доводом
– Раковина: Comillas (bHd) 7012
– Сифон для умивальника
– Змішувач: Grohe Bau Curve 23090000
Сушка для рушників
Класік HP-I 650*430/75 електрична (Mario 4820111356539)
Наповнення сан. вузла

Корпусні меблі

Корпусні меблі та м’які меблі
Кухня
– Корпус: ЛДСП Kronospan 18 мм
– Фасад: МДФ 19 мм, плівка мат
– Стільниця: Luxform 28 мм
– Сушка під посуд: нержавійка GTV
– Ручка: профіль GTV (низ)
– Направляючі: Blum MOVENTO BLUMOTION
– Петлі: Blum Clip-Top Blumotion
– Підйомні механізми: Blum Aventos HR-S
Мийка: Vankor Hope РЬЗ 02.57 Black + сифон Vankor
Змішувач в кухню
 
Angelo Valvex
Шафа в передпокій
 
– Корпус: Kronospan 18 мм
– Направляючі: Hefele скритого монтажу з доводом
– Петлі: Hefele з доводом
– Ручки та гачки: Hefele
Диван-софа
Стіл та стільці (комплект)
Стіл кавовий
 
Згідно візуалізації, розмір 850*500*420
Корпусні меблі

Навіс для авто

Індивідуальне погодження
        
Усі деталі, матеріали та конфігурації можуть бути адаптовані відповідно до ваших побажань.
Навіс для авто

Фундамент

Вибір фундаменту
Для вибору та розрахунку відповідного типу фундаменту
необхідно зробити геологію.
Геодезія
Якщо на ділянці є нерівності та схил, необхідно зробити геодезію.
Фундамент

Прив’язка будинку до топографічної зйомки

Прив’язка будинку на топозйомку
        
Виконуємо безкоштовно на момент підписання договору.
Прив’язка будинку до топографічної зйомки

Планування